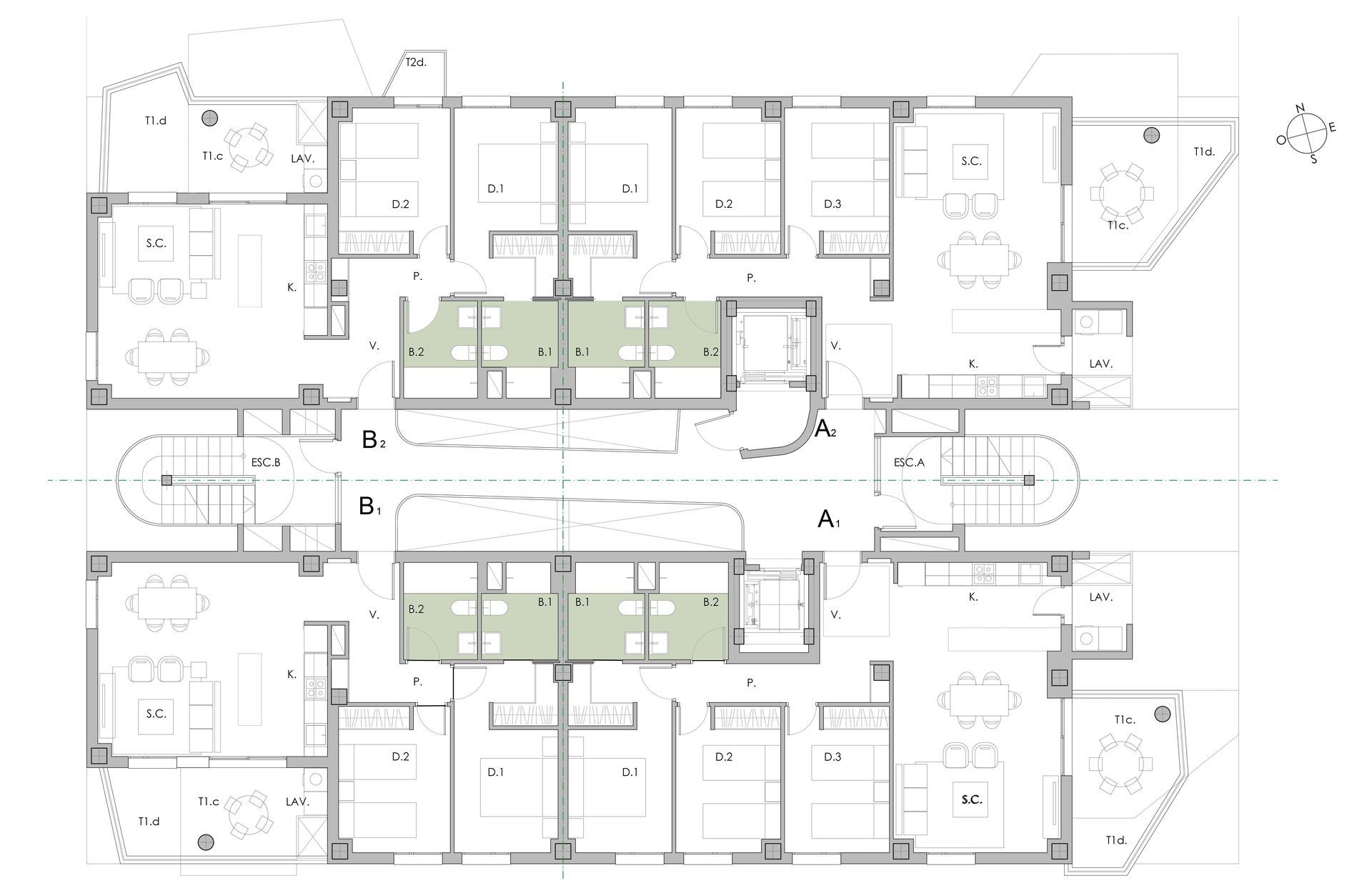
Edificio de 40 Viviendas, local, garaje, trasteros, urbanización y piscina en El Campello
SUP-6
El Campello, Alicante
2021-2024
Proyecto y Dirección
Cliente
Hansa East Coast, S.L.
Arquitecto
Emilio Vicedo Ortiz
Colaboradores
Verónica Leuzzi, Arq
Ana Argelés Sabaté, Arq. Téc.
Eficiencia Energética
Carlos P. Carramiñana. Arq.
Estructura
Zereproject, S.L.
Ingeniería
EPC by Buggypower
Arquitecto Técnico
Antonio Pascual de la Cruz
PEC
5.619.037,94 €
Contratista principal
Grupo Alcudia








